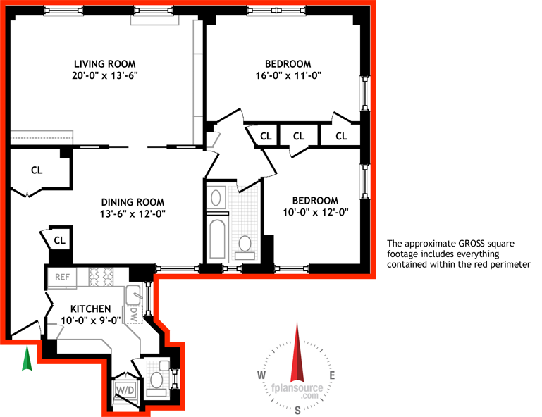
Gross Square Footage Close